Все товары
Баня Лад Баня Лад
1228100 RUB
1 0 5
Описание
Комплектация
Отзывы0
Вопрос-ответ0
Доставка и установка
Бесплатные услуги
Дополнительные опции

Баня Лад

Характеристики
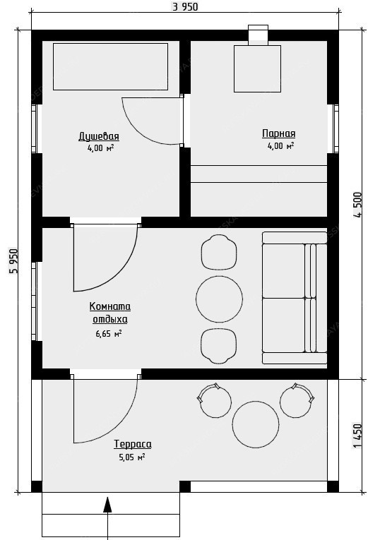
Размер (м)
4х6
Площадь (м²)
24
Конструктив
с террасой
Форма
прямоугольная
Вместимость
10
Материал
дерево
Тип крыши
двускатная
Остекление
стандартное
Артикул
Бан.П0245
Сроки поставки
от 45
Преимущества
Используется древесина камерной сушки
Подетальная покраска на производстве
Возможность изготовления по вашим размерам
Возможность круглогодичного использования
3 года гарантии
  • Материал

    Конструкция изготовлена из хвойных пород древесины (ель, сосна)

    Сорт по лицевой стороне: АВ

    Материал — массив сухой строганный камерной сушки + клееный брус

  • Крепёж

    В крепеже не используем черных саморезов, только желтопассированные

    Крепеж не является сборно – разборным.

  • Требования к участку

    Площадка должна быть максимально ровная, избавлена от растительности (деревья, кусты, высокая трава), должна располагаться поблизости от инженерных коммуникаций.

    В случае перепада участка – просьба сообщить об этом.

  • Генератор

    На участке необходимо электричество, для производства работ по строительству. В случае его отсутствия необходимо об этом сообщить на стадии оформления заказа. В этом случае привозится генератор.

  • Уборка и вывоз мусора

    Мусор собирается в мешки, вывоз с объекта не осуществляется.

  • Фундамент

    Дополнительно приобретается:

    1. Свайный - Винтовые сваи 89×2500 или 108×2500 (стальная труба, залитая бетоном, оголовок)

    2. Ленточный - Фундаментная лента мелкого заглубления

    3. Монолитная плита – монолитная бетонная плита

  • Чистовой пол

    Половая доска шпунтованная, толщиной не менее 35 мм


  • Обшивка цоколя

    Нижняя обвязка обшивается по умолчанию в 1 ряд доской 20х140 мм или 20х190 мм

  • Стены

    Имитация бруса 16×135 мм внутри, имитация бруса 21×135 мм снаружи

  • Утепление

    Варианты, при необходимости (в закрытых конструкциях):

    Утеплитель - минеральная вата KNAUF или аналоги 100 мм, 150 мм, 200 мм (с перевязкой швов, гидроизоляция, влаго-ветрозащитная мембрана, пароизоляция)

    Нет – базовый вариант

  • Парная

    Вагонка и полок из осины

  • Остекление

    Окна в бронирующей пленке. Цвет пластика белый или коричневый.

    В комплектацию входят замки с внутренней стороны на окна и 1 двухсторонняя (врезная) ручка с ключом.

    Возможна замена на:

    Однокамерный энергосберегающий стеклопакет ПВХ 60 мм

  • Потолок и свесы

    Свесы подшиты – имитация бруса 16×135 мм

  • Стропильная система

    Сечение подбирается на этапе проектирования

  • Обрешетка

    Доска 20×140 мм строганная

  • Материал кровли

    Гибкая черепица «Финская Соната» + Рулонная кровля

  • Цвет кровли

    Красный, зеленый, коричневый или серый 

  • Покраска

    Огнебиозащита (бесцветная) или декоративный деревозащитный состав "Здоровый дом" (цвет на выбор) – нижняя обвязка, лаги, пол и цокольная доска.

    Вся конструкция обрабатывается декоративным деревозащитным составом в 2 слоя - при необходимости дополнительно.

    Предварительно деревянные детали шлифуются.

  • Договор

    Заключается при приезде на участок.

    Полный пакет документов.

Ваш отзыв будет первым!

Поделитесь опытом, помогите другим покупателям с выбором.

Оставить отзыв
Ваш вопрос будет первым!

У этого товара ещё нет вопросов. Будьте первым, кто задаст свой вопрос!

Введено символов 0 / 1000

Отправить
Вопрос будет опубликован после модерации.

Доставка включает привоз товаров на указанный вами адрес с размещением транспортного средства максимально приближённо к месту выгрузки только на дорогах общественного пользования пригодных для движения грузового транспорта (без заезда транспортного средства на территорию частного домовладения). Водитель обязан припарковаться так, чтобы обеспечить безопасную выгрузку товара из машины (необходимо обратить внимание на пешеходов, на припаркованные машины).

Доставка осуществляется в день, согласованный при оформления заказа. Дата зависит от наличия товара на складе или от графика производства.

Доставка осуществляется:

  • Службой доставки организации до Вашего загородного участка (при необходимости осуществляется разгрузка, занос и монтаж)

Стоимость доставки рассчитывается менеджером компании «Русская Деревня». 

Установка осуществляется:

  • Штатными монтажными бригадами, состоящими из опытных и квалифицированных специалистов.

Стоимость установки рассчитывается менеджером компании «Русская Деревня». 

Посмотреть подробнее о доставке и установке
Входит в стоимость
Расчет стоимости

Мы предлагаем прозрачный и детализированный расчет стоимости проекта, основанный на ваших требованиях и ожиданиях.

Входит в стоимость
Разработка 3D-модели

Разрабатываем точные и реалистичные 3D-модели , что позволяет нам визуализировать ваши идеи и проекты в мельчайших деталях.

Входит в стоимость
Обработка нижней обвязки, лаг и пола

Обработка производится с помощью декоративной-деревозащитной пропиткой «Здоровый дом»

Входит в стоимость
Выгрузка и занос к месту установки

Наша команда обеспечит оперативную и аккуратную транспортировку комплекта для сборки.

Входит в стоимость
Гидроизоляция фундамента

Гидроизоляция производится из рубероида или аналогичных материалов

Входит в стоимость
Проживание бригады

Мы самостоятельно обеспечиваем комфортные условия проживания для нашей рабочей бригады, что позволяет поддерживать высокий уровень производительности.

Входит в стоимость
Уборка мусора

После завершения монтажа мы обеспечиваем полную уборку мусора в мешки, оставляя вашу территорию чистой и ухоженной. Наслаждайтесь приятной атмосферой своего участка!

Покраска
  • Покраска в цеху по элементам в два слоя.
  • Профессиональный подход и высококачественные покрытия гарантируют долговечность и привлекательный внешний вид вашей конструкции. Мы готовы подобрать идеальный цвет и предложить эффективные решения для защиты от воздействия внешней среды.
Замена пола на ДПК или лиственницу
  • Эти материалы обладают высокой устойчивостью к воздействиям внешней среды, долговечностью и привлекательным внешним видом.
  • ДПК не требует особого ухода и не подвержен гниению, а лиственница порадует вас природной красотой и теплым оттенком.
Замена кровли на металлочерепицу
  • Металлочерепица отличается высокой прочностью, стойкостью к атмосферным воздействиям и легкостью в установке. Она не только защитит конструкцию от дождя и снега, но и придаст ей стильный и современный вид. Легкий монтаж и большой каталог расцветовк позволят легко вписать конструкцию в общий стиль вашего участка.
Свайно-винтовой фундамент
  • Количество свай рассчитывается индивидуально
  • Материал: металлическая профильная труба D89/108 мм
  • Покрытие: антикоррозийный состав
Водосточная система
  • Комплектация водосточной системы рассчитывается индивидуально
  • Материал: пластик/металл (на выбор)
Шторы для беседки
  • Изготавливаются по вашим размерам.
  • Материал: ткань Оксфорд с полиуретановой пропиткой.
  • Усиление: армированная нить.
  • Комплектуется: Люверсы или петли на выбор, подхваты к столбам, Липучка для соединения.
  • Крепления на выбор: люверсы, стандартные петли, скрытые петли.
Потолочные панели «ПРО ДЕРЕВО»

Потолочные панели рассеивают солнечные лучи, делают более комфортным пребывание внутри конструкции. Особенно актуально в случаях, когда вы хотите светопрозрачную кровлю.

Под такой крышей очень комфортно находиться в летнюю жару - панели сдерживают температуру от нагревающихся листовых кровельных материалов

Безрамное остекление

Безрамное остекление для террас, веранд, беседок - система надежной защиты от ветра, солнца, града и снега в европейском стиле.

Панорамный вид и мобильность: открывайте створки частично или полностью за пару секунд.

Система позволяет перекрыть большую площадь проема и неограничена по длине.

Поворотные жалюзи

С помощью уличных жалюзи вы можете регулировать количество света и воздуха в беседке или на террасе, создавая идеальные условия для отдыха в любое время дня. 

Уличные жалюзи изготовлены из высококачественной древесины, превосходят другие варианты защиты от непогоды. Они надёжно защищают вашу беседку от дождя, ветра и снега, создавая комфортное пространство.

Похожие товары

Новинка!
1 747 473 ₽
Баня Ортея
Размер (м): 4,85х6,65
0 отзывов
Новинка!
1 327 473 ₽
Баня Аркадия
Размер (м): 4,5х5,05
0 отзывов
Новинка!
2 251 515 ₽
Баня Сильвана
Размер (м): 4,8х8,6
0 отзывов
Новинка!
2 738 820 ₽
Баня Эспера
Размер (м): 5,95х11
0 отзывов
Новинка!
1 592 535 ₽
Баня Равелла
Размер (м): 5,95х5
0 отзывов
Новинка!
2 416 260 ₽
Баня Монреаль
Размер (м): 5,95х7,5
0 отзывов
Новинка!
1 960 466 ₽
Баня Фиоре
Размер (м): 5,5х6,5
0 отзывов
Новинка!
2 205 431 ₽
Баня Велма
Размер (м): 7х7,35
0 отзывов
Новинка!
2 371 887 ₽
Баня Солана
Размер (м): 6,4х6,45
0 отзывов
Новинка!
2 333 415 ₽
Баня Терция
Размер (м): 5,5х9,7, тер 2,77х8,05
0 отзывов
2 615 000 ₽
Баня Омела
Размер (м): 8,5х6
0 отзывов
1 433 200 ₽
Баня Светлица
Размер (м): 4х7
0 отзывов
1 218 900 ₽
Баня Термы
Размер (м): 6х4
0 отзывов
1 524 100 ₽
Баня Сана
Размер (м): 5х6
0 отзывов
Новинка!
3 311 000 ₽
Баня Гранд
Размер (м): 6х10
0 отзывов
1 180 900 ₽
Баня Полать
Размер (м): 4х6
0 отзывов
2 784 100 ₽
Баня Сплав
Размер (м): 5х11
0 отзывов
1 498 800 ₽
Баня Ладань
Размер (м): 6х6
0 отзывов
2 982 100 ₽
Баня Воля
Размер (м): 6х10
0 отзывов
3 540 000 ₽
Баня Жар
Размер (м): 10х12
0 отзывов
2 674 000 ₽
Баня Взвар
Размер (м): 10х5
0 отзывов
1 985 600 ₽
Баня Живица
Размер (м): 5х7
0 отзывов
2 180 600 ₽
Баня Таволга
Размер (м): 6х7
0 отзывов
1 261 200 ₽
Баня Кипель
Размер (м): 7х2,4
0 отзывов
839 100 ₽
Баня Криница
Размер (м): 2,45х7,0
0 отзывов
837 500 ₽
Баня Росаль
Размер (м): 2,45x7,0
0 отзывов
757 900 ₽
Баня Ласа
Размер (м): 8x2,25
0 отзывов
549 700 ₽
Баня Вереск
Размер (м): 5x2.3
0 отзывов
769 580 ₽
Баня Здрава
Размер (м): 7х2.3
0 отзывов
1 130 500 ₽
Баня Свежь
Размер (м): 3,4х7,0
0 отзывов
1 425 000 ₽
Баня Папоротник
Размер (м): 6х5
0 отзывов
537 840 ₽
Баня Дго
Размер (м): 4,5х2,4
0 отзывов
1 217 500 ₽
Баня Борть
Размер (м): 5х5
0 отзывов
978 000 ₽
Баня Яра
Размер (м): 4х5
0 отзывов
579 950 ₽
Баня Радон
Размер (м): 3х4
0 отзывов
360 400 ₽
Баня Ясень
Размер (м): 2х2,2
0 отзывов
Подпишитесь на наш канал — у нас интересно! Подпишитесь на наш канал — у нас интересно!
Заказать звонок WhatsApp MAX Telegram